Эффективное формирование архитектурной модели многоэтажного здания с копированием между этажами в .dwg-модели
При проектировании многоэтажных зданий в nanoCAD BIM Строительство проектировщики регулярно сталкиваются с необходимостью многократного копирования элементов модели между этажами. Повторяющиеся конструкции — стены, перекрытия, проемы и другие элементы требуют быстрого и корректного переноса, чтобы избежать ручной работы и снизить риск ошибок.
В таких задачах помогает инструмент копирования между этажами, реализованный в nanoCAD BIM Строительство. Он позволяет переносить элементы модели на другие уровни проекта и ускоряет формирование типовых этажей.
В статье мы рассмотрим работу этого инструмента на практическом примере. Для этого поэтапно сформируем модель этажа и разберем основные шаги подготовки проекта. Начнем с создания сетки осей и настройки параметров, необходимых для корректной работы модели. Параметры осей, используемые в примере, приведены в таблицах 1-3.
Табл. 1. Параметры осей по направлению X
|
Обозначения |
Значения |
Приращения |
|---|---|---|
|
1 |
0 |
0 |
|
2 |
6000 |
6000 |
|
3 |
12000 |
6000 |
Табл. 2. Параметры осей по направлению Y
|
Обозначения |
Значения |
Приращения |
|---|---|---|
|
А |
0 |
0 |
|
Б |
6000 |
6000 |
|
В |
12000 |
6000 |
Табл. 3. Параметры осей по направлению Z
|
Обозначения |
Значения |
Приращения |
|---|---|---|
|
Этаж 1 |
0 |
0 |
|
Этаж 2 |
3300 |
3300 |
|
Этаж 3 |
6600 |
3300 |
|
Этаж 4 |
9900 |
3300 |
|
Этаж 5 |
13200 |
3300 |
|
Кровля |
16500 |
3300 |
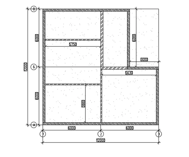
В качестве демонстрационного примера возможностей ПО и ускоренного закрепления информации построим относительно небольшую модель средствами программы. Построим первый этаж, начиная с перекрытия и несущих стен и опираясь на представленный план (рис. 1). Толщина перекрытия – 800, толщина стен – 250 и 120. Привязка стен снизу к осям «этаж 1», привязка стен сверху к осям «этаж 2» со смещением 200.
Опираясь на план, получим модель, показанную на рис. 2.
Добавим в модель дополнительные элементы: дверные и оконные проемы и помещения. Получим модель, показанную на рис. 3.
Для работы с копированием элементов в программе предусмотрены две основные команды Копировать и Разместить по этажам, расположенные на панели Модель на вкладках BIM Архитектура и BIM Конструкции (рис. 4).
Принцип работы инструментов Разместить по этажам и Копировать основывается на привязке элементов к уровням сетки осей, соответственно, на данный момент, элементы, не имеющие привязки к сетке осей, например, параметрические объекты, не могут быть корректно скопированы подобным образом.
Инструмент Разместить по этажам (рис. 5) представляет собой отдельное окно, позволяющее копировать объекты по типам элементов внутри модели, а также вставлять объекты из буфера обмена nanoCAD BIM Строительства при копировании между моделями.
-
Выбор копируемых типов элементов.
-
Выбор источника копируемых элементов. Буфер обмена – объекты, скопированные инструментом «Копировать» с возможностью переноса элементов между файлами. Исходный уровень – копирование или перенос элементов в рамках одной модели с выделенного уровня сетки осей.
-
Выбор конечного места копирования, уровня сетки осей в проекте. Перемещать и копировать объекты можно как в рамках одной координатной сетки, так и между различными сетками в пределах одной .dwg-модели.
-
Дополнительные настройки копирования или переноса объектов.
Базовый уровень объекта – возможность привязки базового уровня объекта к новому уровню сетки осей либо с возможностью отвязки от уровней и сохранением абсолютной отметки относительно МСК проекта.
Элементы с верхней привязкой – можно применять к элементам с привязкой как к базовому, так и верхнему уровню, таким как Стена. Параметр позволяет перепривязать элемент к новому верхнему уровню, соответствующему новому уровню из пункта 3, либо с возможностью отвязки от верхнего уровня с сохранением высоты существующего элемента.
Воспользуемся инструментом Разместить по этажам для копирования основных типов элементов на уровнях сетки осей проекта. Скопируем разработанную модель на уровень 2 (рис. 6), а затем скорректируем толщину перекрытия через свойства.
Итоговая модель, представленная на рис. 7, будет иметь следующий вид.
После корректировки толщины перекрытия вернемся к инструменту Разместить по этажам и продолжим копирование, начиная с уровня 2 (рис. 8).
Выберем оставшиеся 3 этажа для копирования элементов, а также в качестве исходного возьмем уровень 2.
Для копирования большого количества объектов сразу на несколько уровней может понадобиться некоторое время и надо будет задействовать увеличенные ресурсы компьютера. В этих случаях рекомендуется проводить копирование по одному этажу.
Итоговая модель продемонстрирована на рис. 9.
Для завершения модели выделим перекрытие и внешние стены 5-го этажа и используем инструмент Копировать. После этого вставим их на уровень сетки осей Кровля и отредактируем, чтобы получить окончательный вид модели.
При копировании из буфера обмена вид инструмента Разместить по этажам меняется. В этом варианте инструмента необходимо выбрать слева уровень, на котором находятся элементы в буфере обмена, справа выбирается целевой уровень, на который происходит копирование (рис. 10).
После применения инструментов Копировать и Разместить по этажам получим модель, показанную на рис. 11.
Рассмотрим как использовать команду Копировать при переносе объектов между файлами. Для этого необходимо выделить элементы, перенос которых планируется в дальнейшем. При использовании копирования копии выбранных объектов переносятся в специализированный буфер обмена, связанный с программой nanoCAD BIM Строительство. В качестве примера выделим помещения в модели и переместим их в другой проект (рис. 12-13).
Переносим выделенные элементы в буфер обмена через инструмент копирования (рис 13).
Открываем сторонний проект (рис. 14).
Активируем в стороннем проекте инструмент Разместить по этажам, после чего выбираем в качестве источника копируемых объектов буфер обмена и указываем в окне Куда слева уровень сетки осей исходного проекта, из которого произвели копирование, а справа уровень сетки осей активного проекта, на который планируем копировать элементы (рис. 15).
Получаем следующий результат (рис. 16).
Таким образом, инструмент копирования между этажами в nanoCAD BIM Строительство позволяет значительно упростить работу при моделировании многоэтажных зданий и сократить количество повторяющихся операций.
При его использовании важно учитывать привязку элементов к уровням сетки осей — это обеспечивает корректное копирование объектов между этажами.
Правильная подготовка модели и использование инструмента Разместить по этажам позволяет ускорить процесс формирования типовых этажей и повысить точность работы с BIM-моделью.
Автор: Дмитрий Малиновский, эксперт по внедрению и поддержке ТИМ, ГК «ИНФАРС»
Автор: nanocad

