BIM-поддержка в ПИК. Ошибки, которых нет в инструкциях: нетиповые кейсы в Revit и как мы их решаем
Привет, Хабр!
Меня зовут Александра Касаткина. Я ведущий координатор по технологиям информационного моделирования в группе BIM-поддержки в команде ПИК Digital.
Ранее руководитель группы Александра Васильева рассказывала, как устроен сервис BIM-поддержки и как мы решаем проблемы до их появления в статье «BIM-поддержка в ПИК: как сервис решает проблемы до их возникновения». Но что делать, если проблема есть, а решения в базе знаний у нас нет? Разберем в этой статье. В конце статьи приложим чек-лист с алгоритмом действий при решении нетиповых кейсов.
Почему важно не просто «починить», а понять корень проблемы
В работе с Revit даже самая продуманная методология не застрахована от неожиданных сбоев — особенно когда речь идет о нетиповых задачах, которых нет во внутренних инструкциях. В BIM-поддержке ПИК мы сталкиваемся с такими кейсами регулярно. И наш подход — не просто быстро «залатать дыру», а разобраться, почему она появилась. Глубокое понимание причины позволяет не только решить текущую проблему, но и предотвратить десятки подобных в будущем. В этой статье мы поделимся практическими примерами таких ситуаций и тем, как мы их превращаем в устойчивые решения.
Реальные кейсы: что пошло не так, и как мы это решили
Мы разобрали четыре нетиповых случая из практики с описанием проблемы, хода расследования и главного вывода.
Кейс 1. Баг в инструменте: «понять» или «починить»?
Суть проблемы:
Проектировщики сообщили, что инструмент Автокодировка (который заполняет коды квартир для формирования отчетов в отдел продаж) некорректно вносит некоторые поля параметров.
Первое предположение:
Решением казалось просто скорректировать значения параметров вручную — это быстрее, чем ждать фикса. Заняло бы 8–10 часов на проект, но позволило бы уложиться в дедлайн.
Но этого было недостаточно: с одной стороны, заполнить параметры вручную будет быстрее, чем исправить баг в инструменте. С другой стороны, проектировщики хотят решение проблемы здесь и сейчас без ручных корректировок.
Поиск решения
Провели тестирование и подтвердили: баг действительно в логике работы инструмента. Оценили трудозатраты на ручное заполнение параметров и предложили временный компромисс, но договориться не удалось. Тогда мы пошли дальше: обсудили проблему с отделом внедрения BIM (который занимается разработкой и поддержкой BIM-технологии и базы знаний, составляет технические задания для разработки инструментов автоматизации) о возможности разрешения проблемы и включили в обсуждение отдел продаж, который использует эти параметры на выходе.
Оказалось, что поля, которые инструмент заполнял некорректно, на момент его использования уже не применялись в процессах отдела продаж. Обновление инструмента, исключающее их заполнение, было запланировано — однако из-за большого объема работ релиз затянулся, и отдел внедрения не успел своевременно уведомить всех заинтересованных о том, что поля устарели. В качестве временного решения проектировщики продолжали работать с текущей версией инструмента.
Итог:
-
На текущем проекте оставили как есть — без ручной корректировки.
-
В следующей версии инструмента баг устранили, а логику работы упростили.
Вывод:
Иногда «проблема» — это избыточное требование. Диалог между отделами помогает отличить реальную ошибку от ложной тревоги.
Кейс 2. Файл не открывается с проверкой: та же ошибка год спустя
Суть проблемы:
Файл открывается без проверки, но с этой функцией не запускается.

Первое предположение:
Предложили ежедневно сохранять локальные файлы в конце рабочего дня, чтобы минимизировать потери при возникновении проблем в будущем.
Поиск решения:
Проблема не была решена, а лишь отложена. Через год случилась та же ситуация на другом проекте, где команда даже не знала о ее существовании. Только теперь в файле невозможно было работать. При любых манипуляциях возникала критическая ошибка,

а файлы восстановления были сломаны. На этот раз решили копать глубже.
Подтвердили, что проблема не локальная — воспроизводится на разных ПК. Опросили коллег — выяснили, что инцидент уже был. Собрали все заявки по теме, проанализировали историю. Проверили файл журнала Revit — информации о причине ошибки там не было. Обратились к Autodesk Forum, но сначала перевели текст на английский.
Лайфхак. При поиске по тексту на русском языке результата не было. Если перевести ошибку Revit на английский язык, то шансов найти решение становится больше. На форуме Autodesk появилось точное описание проблемы: такая ситуация возникает при повреждении семейств. Со стороны BIM-поддержки по инструкции с форума были выгружены все семейства из модели, найдены проблемные.



Предложенное решение — обновление сломанных семейств в проекте или удаление их, если они находятся в неиспользуемых элементах, — сработало.
Итог:
-
Провели анализ сломанных прошлогодних файлов, где просили сохранять локальные копии и отправили ответственному мастерской пошаговое руководство по решению проблемы.
-
Написали внутреннюю инструкцию для BIM-координаторов, чтобы в будущем мы могли предоставить качественный выход из ситуации.
Вывод:
«Быстрое решение» без анализа — это долгосрочный риск. Только понимание причины превращает повторяющийся кризис в предотвращенную проблему.
Кейс 3. Связи «исчезли»: проблема в модели или глюк Revit?
Суть проблемы:
Связанные файлы отображаются некорректно — часть элементов внутри связанных файлов «пропала».

Первое предположение:
Мы решили, что это типовая проблема в переопределении видимости или графики. Но после тщательного тестирования стало ясно: проблема локальная, только у одного пользователя.
Удаленный доступ показал, что не все рабочие наборы были открыты, но после их подключения ничего не изменилось.
Поиск решения:
Выяснилось: в родительском и связанном файлах есть рабочие наборы с одинаковыми именами. Revit трактует их как единый набор. Если в первом файле такой РН закрыт — он автоматически скрывается и в связях.


Неочевидным результатом стало то, что даже после открытия рабочих наборов 3D-вид «застрял» в старом состоянии. Помогло удаление и повторное создание 3D-вида. Revit перестроил отображение.


После чего связи стали отображаться корректно.

Итог:
-
Объяснили пользователю логику именования и управления РН.
-
Рекомендовали избегать одинаковых имен РН в разных файлах.
-
Зафиксировали информацию в инструкции.
Вывод:
Revit — система с глубокими внутренними связями. То, что кажется «глюком», часто — следствие неочевидного, но логичного поведения. Здесь хорошо сработала коммуникация с пользователем и опыт, накопленный в прошлом. Так как ранее проблема с некорректным отображением 3D-видов уже была, и мы быстро смогли понять, что вид нужно удалить и создать заново.
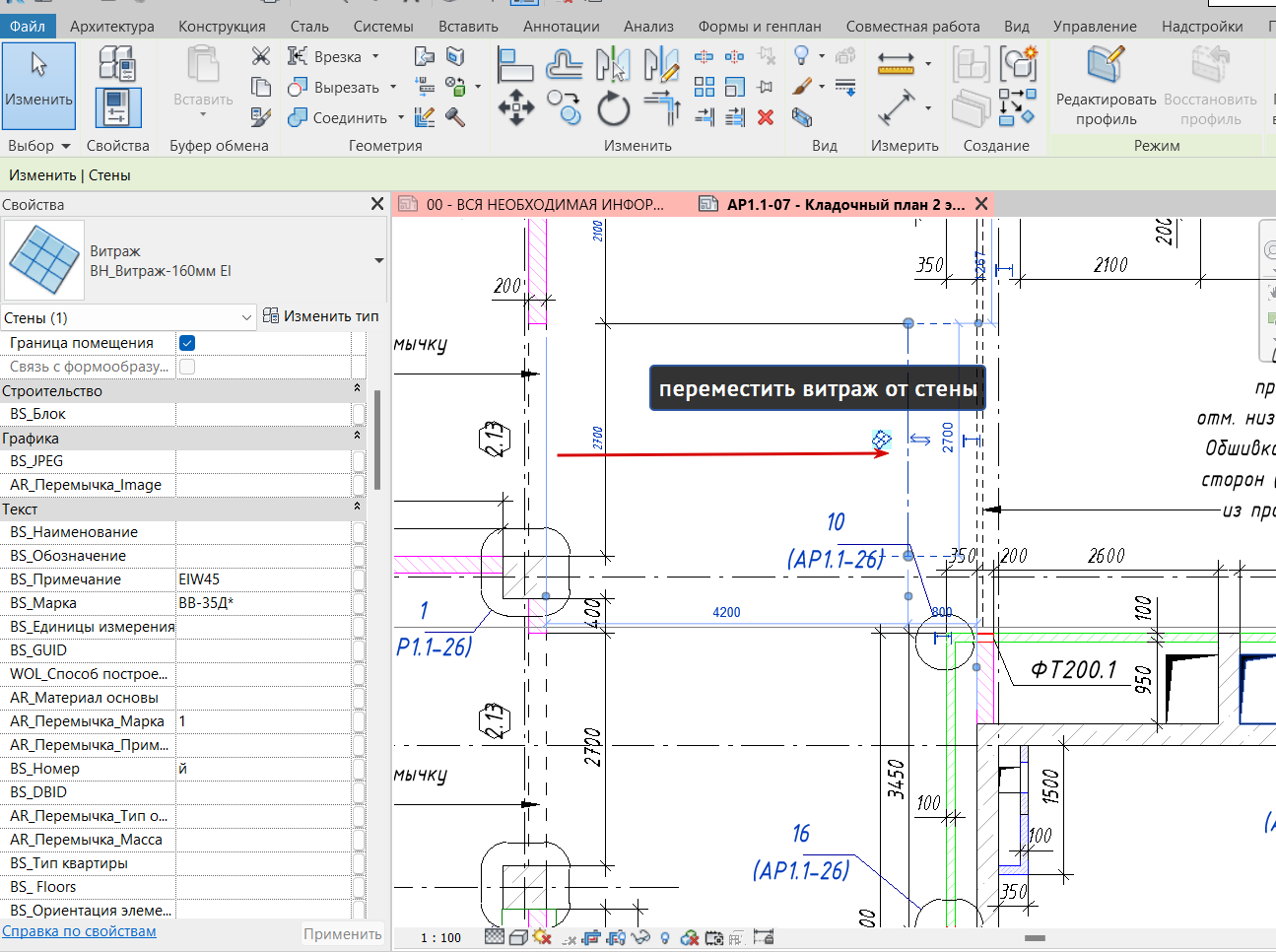
Кейс 4. Проемы: когда Revit «перерезает» стену дважды
Суть проблемы:
В проекте внезапно исчезли проемы.
Первое предположение:
Мы сразу заподозрили конфликт между элементами, вырезающими геометрию из стены. Провели тестирование и обнаружили следующее:
-
В зоне каждого «пропавшего» проема установлено семейство витража, у которого в настройках включена функция «Автоматически вложение».


Что происходит «под капотом» Revit.
Revit позволяет нескольким элементам вырезать одно и то же отверстие в стене — но только до тех пор, пока логика остается последовательной. В данном случае система «видит» два источника вырезания.
-
Витраж, который должен сам создать проем.
-
Отдельный проем, уже существующий в стене.
Когда пользователь вносит любое изменение в витраж (например, перемещает его или редактирует параметры), Revit пытается перестроить связь с хостом. Но поскольку основа (стена) уже занята другим элементом, витраж теряет геометрическую привязку к хосту. В результате Revit удаляет дублирующий проем, считая его избыточным, — и стена «заращивается».

Мы предположили: достаточно снять галочку «Автоматическое вложение» у витража, чтобы оставить вырезание в стене только у проема.

Но тут возникла новая сложность: уже размещенные витражи не теряют привязку к стене автоматически при отключении опции «Автоматическое вложение». То есть, даже после снятия галочки витраж вырезается из стены, и конфликт сохраняется.
Поиск решения:
Чтобы «разорвать» связь и позволить Revit корректно перестроить геометрию, потребовалось вмешательство вручную.
-
Либо временно отсоединить витраж от стены, сдвинув его в сторону (например, на 1000 мм), а затем вернуть на место.


-
Либо отсоединить элемент витража от стены при помощи функции «отменить вырезание геометрии».

Аналогичная ситуация возникала с элементами в категориях «окна» и «витражи». Во всех случаях сценарий был одинаков: дублирование функции вырезания → потеря основы при редактировании → исчезновение проема/окна/двери.
Вывод:
-
Мы не просто нашли симптом, а воспроизвели логику конфликта на уровне поведения Revit.
-
Выявили скрытую причинно-следственную связь между настройками семейств и ручным моделированием, которую пользователь не мог увидеть сам.
-
Протестировали решение не только на одном элементе, но и на аналогичных сценариях.
-
Зафиксировали решение в инструкции.
Кейсов много, и все они разные — где-то помогает тщательное тестирование, где-то коммуникация между отделами, с коллегами, с проектной группой, а где-то приходят на помощь внешние источники информации. Каждый из этих кейсов — не просто «поломка», а возможность улучшить процессы, документацию и взаимодействие в команде. Именно так мы превращаем хаос нетиповых ситуаций в систему.
Чек-лист диагностики нетиповых ошибок
Диагностика нетиповых (нестандартных) ошибок в Autodesk Revit требует системного подхода, позволяющего быстро локализовать и устранить проблему, а также предотвратить ее повторное возникновение. Ниже приведены ключевые принципы, которые рекомендуется соблюдать при работе с такими ошибками.
Проверка базы знаний
Прежде чем тратить время на самостоятельную диагностику, необходимо убедиться, что проблема не была уже решена ранее. Проверьте внутреннюю базу знаний на наличие уже описанной проблемы и готового решения. Часто подобные ошибки ранее встречались, и для них были готовы пошаговые инструкции по устранению.
Воспроизведение ошибки
Если проблема не воспроизводится, то её невозможно диагностировать объективно — следовательно, первым шагом после проверки базы знаний необходимо подтверждение существования ошибки и понимание условий её появления.
Важно воспроизвести ошибку в контролируемых условиях. Проверьте, удается ли стабильно повторить проблему? При каких действиях она возникает? Это помогает понять, является ли она случайной или системной.
Локализация ошибки
Как только ошибка стабильно воспроизводится, необходимо сузить зону поиска — определить, где именно «живёт» проблема.
Ответьте себе на 2 главных вопроса:.
-
Связана ли ошибка с конкретным проектом, семейством, шаблоном или плагином?
-
Ошибка появляется только у одного пользователя или у всех членов команды?
Такая изоляция позволяет сузить круг возможных причин возникновения проблемы.
Анализ журналов и тестирование
После локализации контекста возникновения ошибки перейдите к техническому анализу: системные журналы могут содержать скрытые подсказки, а тестирование в «чистой» среде поможет исключить влияние посторонних факторов.
-
Изучите файлы журнала Revit — они могут содержать технические детали сбоя, указывающие на конкретный модуль, операцию или компонент, вызвавший ошибку.
-
Если журналы не дали ясной картины, временно отключите все сторонние плагины и повторите действия, приводящие к ошибке. Это позволит определить, связана ли проблема с каким-либо плагином.
-
Если ошибка сохраняется даже без плагинов, создайте новый пустой проект на базовом шаблоне и попытайтесь воспроизвести проблему в «чистой» среде. Это поможет выявить, обусловлена ли ошибка состоянием конкретного проекта (например, повреждёнными данными, конфликтующими семействами).
Консультация с коллегами и смежными отделами
Если внутренние данные недостаточны, обратитесь к коллегам: другие участники проекта или специалисты могут обладать недостающей информацией или видеть проблему под другим углом. Обсуждение проблемы с коллегами, особенно с теми, кто работает с теми же инструментами или проектами, может выявить скрытые зависимости или подсказать неочевидные решения. Вовлечение смежных отделов (например, ответственных за плагины, разработчиков семейств или IT-специалистов) также может ускорить диагностику.
Поиск аналогов во внешних источниках
Если внутренние ресурсы и тестирование не дали результата, стоит обратиться к внешним источникам — форумам Autodesk или сообществам Revit-пользователей (например, специализированные Telegram-каналы).Сообщества пользователей часто сталкиваются с похожими нетиповыми сценариями и делятся решениями.
Документирование решения
Завершив диагностику, необходимо зафиксировать результат в базе знаний. Это позволит оперативно устранить проблему в будущем или предотвратить ее появление.
Соблюдение этих принципов обеспечивает структурированный и эффективный подход к решению нетиповых проблем в Revit, повышая стабильность рабочего процесса и качество BIM-моделирования.
***
Таким образом, нетиповые ошибки в Revit — не повод для паники, а возможность для роста. В ПИК мы убеждены: главное — не просто устранить симптом, а понять причину. Благодаря системному подходу, межкомандной коммуникации и тщательному документированию, каждый «глюк» становится шагом к более устойчивым процессам, надежной документации и зрелой BIM-культуре. Ведь именно так хаос превращается в систему.
Полезные ссылки и материалы
Форум Autodesk (работает через VPN)
Сайт BIM SUPPORT
ATOM.BIM!
BIM&DESIGN стандарт
Форум сообщества BIM2B
ИИ. В моей практике очень хорошо помогает поиск от Алисы. Если хорошо сформулировать запрос, то Алиса подтягивает данные с разных ресурсов, в том числе и с Autodesk, что не раз выручало в работе.
Автор: PIK-Digital

